Una casa reformada de diseño vintage en Florencia
Suelos eclécticos, interiores luminosos y muebles vintage... Esta reforma de Studio Benaim te sorprenderá. Descubrimos todos los detalles de este espectacular proyecto de diseño en Florencia.
En el corazón de Florencia —a un paso de la histórica Porta Romana— los diseñadores de Studio Benaim han reformado esta particular vivienda de los años 30, llena de luz y detalles vintage.
Descubrimos todos los detalles de este proyecto; desde el llamativo juego de los pavimentos, a la hermosa cocina (el auténtico corazón de la casa). Déjate inspirar por este luminoso diseño.
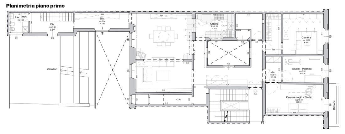
Un plano de lo más curioso
A la hora de reformar viviendas antiguas, la distribución de los espacios suele ser uno de los mayores desafíos. Esta vivienda —un apartamento en la primera planta de una casa de 1930— se distribuye alrededor de un patio central, con un espacioso jardín trasero.

En su diseño, Studio Benaim coloca los espacios privados hacia el frente de la casa (abierta a la calle), mientras que salón, comedor y cocina son distribuidos al fondo de la casa, junto al jardín. Brindando luz y amplitud, las divisiones entre los ambientes sociales desaparecen, con grandes arcos y una ventana que comunica comedor y cocina.



Apartamento en Florencia reformado por Studio Benaim. Imágenes cortesía de Mediatike e Ilve. Fotografía de Sofia Lalli
«Por un lado, eliminamos un muro que antes dividía las estancias que actualmente ocupan el sofá y la mesa de comedor, para formar un único y amplio espacio habitable. Por otro lado, creamos una amplia zona de paso entre la cocina y la sala de estar, insertando una profunda repisa de granito que también sirve de soporte para los armarios inferiores».

Los acabados
Para asegurar que el apartamento resulte luminoso y amplio, las paredes se pintan de blanco en toda la casa (con una única excepción: uno de los cuartos de baño, de color terracota).
El color blanco acentúa los techos altos de la casa, y refleja la abundante luz que entra por las ventanas, creando un espacio limpio y aireado. Esta apuesta por el blanco ofrece el escenario perfecto para los pequeños detalles de la decoración, que resaltan mucho más.


Apartamento en Florencia reformado por Studio Benaim. Imágenes cortesía de Mediatike e Ilve. Fotografía de Sofia Lalli
Y, uno de esos detalles, son los suelos. Cada ambiente de la vivienda se pavimenta con baldosas de colores y patrones diferentes. Los azulejos originales de la casa se combinan con nuevos suelos de terrazzo (aportando un fresco contraste) y losas de mármol blanco que delimitan las fronteras de cada estancia. El resultado es un juego lleno de colores sutiles y un carácter único.

En los cuartos de baño el estilo es mucho más contemporáneo. Uno de los aseos, de color blanco, se recubre de mármol en toda la mitad inferior de la estancia. Mientras que, en el otro cuarto de baño, se apuesta por un color arenoso, reemplazando las baldosas por pintura para crear un espacio mucho más cálido.


Apartamento en Florencia reformado por Studio Benaim. Imágenes cortesía de Mediatike e Ilve. Fotografía de Sofia Lalli
La cocina
La clienta —una periodista del mundo culinario— sabía que quería una cocina de la que disfrutar al máximo. Así, los diseñadores de Studio Benaim crean una cocina que (aunque pequeña) se convierte en el verdadero corazón de la casa.

El espacio de la cocina es limitado, pero muy bien aprovechado. Las baldas abiertas en la parte alta ayudan a abrir la habitación, al igual que los muebles de color blanco. Así, la cocina parece mucho más grande.
Y, para expandir el almacenaje, las alacenas se extienden hacia el comedor, creando así una enorme encimera bajo la ventana que comunica cocina y comedor. El moteado granito gris elegido para las encimeras brinda un llamativo contraste con los suelos de terrazzo beige.


Apartamento en Florencia reformado por Studio Benaim. Imágenes cortesía de Mediatike e Ilve. Fotografía de Sofia Lalli
Pero, además de bonita, la cocina es profundamente funcional. La nevera de acero inoxidable ofrece una estética moderna, y encaja con la espectacular cocina profesional de Ilve —con seis fogones y dos hornos—.

Unos muebles de estilo vintage
En este apartamento, minimalismo y estilo retro van de la mano. Los espacios blancos y abiertos se complementan con muebles vintage de tonos oscuros. Se apuesta por cueros granates y verdes para los sofás, junto a un comedor con muebles de madera rústicos y gastados. Pero, al elegir lámparas y obras de arte, se vuelve a lo moderno.


Apartamento en Florencia reformado por Studio Benaim. Imágenes cortesía de Mediatike e Ilve. Fotografía de Sofia Lalli
El resultado es un interior fresco, minimalista y contemporáneo, pero que resulta también vivido y hogareño. En estos interiores, cada fotografía, cada libro, o cada recuerdo, se convierten en auténticos protagonistas.
Planner 5D: El futuro del diseño de interiores
Descubre el poder de la IA para diseño de interiores con Planner 5D. Nuestras innovadoras herramientas como Design Generator, Smart Wizard, o el reconocimiento de planos con IA, hacen que crear la casa de tus sueños sea más fácil que nunca. Transforma todas tus ideas en realidad y desbloquea un nuevo mundo de posibilidades de diseño.
Comienza a diseñar la casa de tus sueñosTambién podría interesarte
- Una casa en Madrid con los mejores acabados
- Los setenta están de vuelta: la decoración años 70 se actualiza
- Glosario: 25 términos de arquitectura que te serán útiles
- 6 planos de casas de 4 dormitorios para inspirarte
- Colores para baños de tendencia: consejos de diseño para el baño perfecto