7 planos de dormitorios con medidas
En el diseño de interiores, la distribución de los muebles es esencial. Inspírate con estos planos de dormitorios, y descubre cómo crear el espacio de tus sueños.
El dormitorio es una de las estancias más importantes de cualquier casa. Por eso, es importante diseñar un espacio cómodo, funcional y acogedor. Echa un vistazo a estos siete planos de dormitorios con medidas e inspírate para crear el espacio perfecto.
Desde la accesibilidad, al almacenaje o la iluminación, conoce algunas de las claves para crear planos de dormitorios bien diseñados.
Plano de dormitorio pequeño de 6m2
El gran desafío de los dormitorios más pequeños es incorporar suficiente almacenaje. Armarios, mesitas de noche, cómodas… ocupan un espacio que no siempre está disponible.
En este pequeño dormitorio se elige una cama individual con cajoneras, así como una pequeña otomana con almacenamiento oculto, perfectos para complementar un armario reducido.

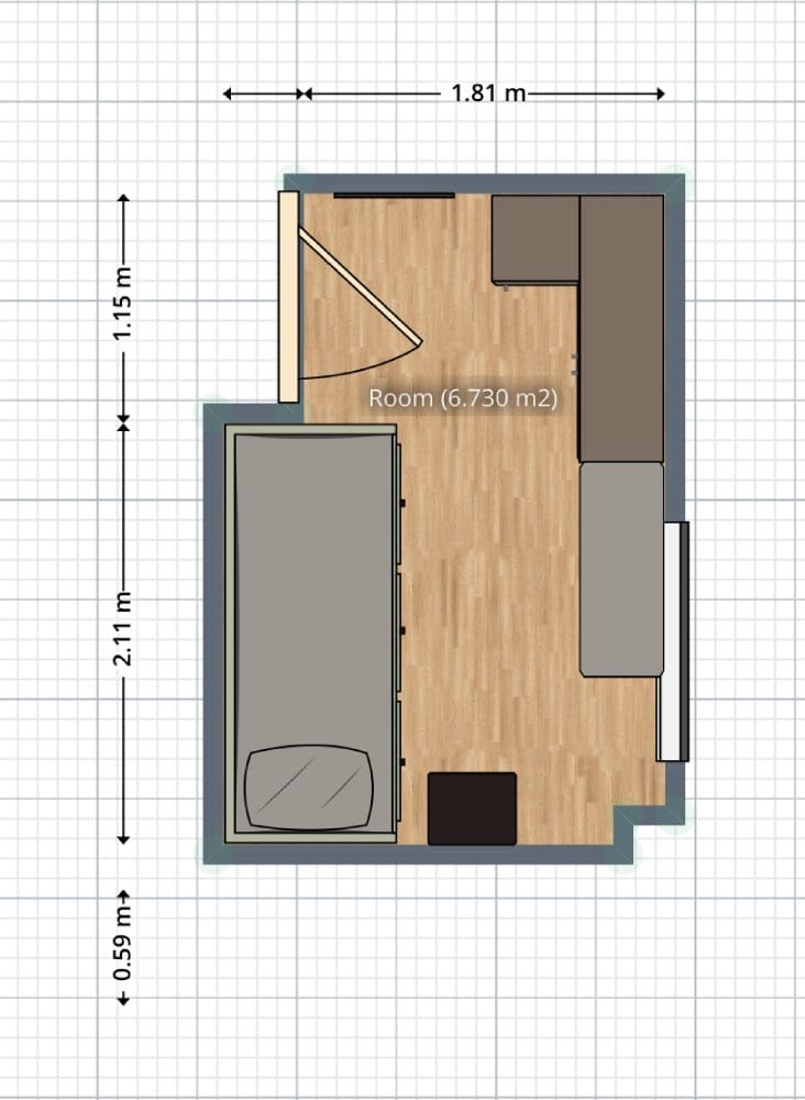
Dormitorio pequeño de 8m2 con cama doble
Diseñar un dormitorio pequeño con cama doble—en este caso, una cama con colchón de 150cm— obliga a hacer concesiones.
En este diseño se eliminan las mesitas de noche (reemplazada por estrechas baldas en la pared) y el almacenaje se reduce al mínimo. En este tipo de dormitorios, elegir un canapé abatible puede brindar gran funcionalidad. De esta manera, se gana almacenaje extra, sin sacrificar las zonas de paso.


Plano de dormitorio infantil con escritorio
En la mayoría de los hogares, los dormitorios infantiles o juveniles necesitan tener un escritorio. Lo recomendable a la hora de colocar esta zona de trabajo o estudio, es elegir un rincón con luz natural.
En este diseño, el escritorio se coloca junto a la ventana, dejando la zona de armario junto a la entrada de la habitación. Así, toda la habitación recibe luz natural que, de colocarse el armario junto a la ventana, quedaría ensombrecida.

Planner 5D: El futuro del diseño de interiores
Descubre el poder de la IA para diseño de interiores con Planner 5D. Nuestras innovadoras herramientas como Design Generator, Smart Wizard, o el reconocimiento de planos con IA, hacen que crear la casa de tus sueños sea más fácil que nunca. Transforma todas tus ideas en realidad y desbloquea un nuevo mundo de posibilidades de diseño.
Comienza a diseñar la casa de tus sueñosDistribución de dormitorio para dos niños
En un dormitorio infantil compartido es importante asegurar que haya suficiente espacio para que ambos niños puedan jugar, estudiar y almacenar todas sus cosas.
En este diseño se opta por un escritorio compartido, dos camas pequeñas con sendas mesitas, y soluciones de almacenaje adaptadas para aprovechar hasta el último metro cuadrado (sin sacrificar un espacio central abierto para juegos y actividades).

Diseño de dormitorio de matrimonio pequeño
Si bien es una elección muy personal, cuando no sobra el espacio, elegir una cama de matrimonio pequeña (de 135 o 150cm) ayuda a maximizar la habitación.
En este espacio con varias ventanas, una cama más pequeña ayuda a acomodar armarios dobles, mesitas de noche y una cómoda. En este diseño, se da prioridad al almacenaje (con dos frentes de armario y una cómoda adicional) pero, en caso de no necesitarse, podría reemplazarse la cómoda por un escritorio o incluso un pequeño rincón de lectura.

Plano de dormitorio de 15 m2 con baño en suite
Uno de los problemas a la hora de diseñar un dormitorio compacto con baño en suite reside en acomodar los distintos accesos: la puerta del dormitorio, la puerta del cuarto de baño, así como las ventanas, deben quedar ininterrumpidas.
En esta habitación se acomodan dos armarios pequeños y una cómoda, aprovechando el espacio entre las ventanas.


Plano de dormitorio grande con baño en suite y vestidor
Con más metros cuadrados, las opciones se vuelven infinitas. Desde una zona de estar, a un rincón de trabajo o una cama más amplia, un dormitorio grande puede aprovecharse de muchas maneras; especialmente cuando el almacenaje se relega a un vestidor aparte.
En el diseño de la imagen se aprovecha una zona con amplios ventanales para crear un acogedor rincón de lectura.

Diseña tus propios planos de dormitorios
Planner 5D es una potente herramienta de diseño. Crea planos 2D y modelos 3D en minutos con total libertad creativa. Explora distintas distribuciones de mobiliario, combinaciones de colores y todo tipo de estilos de decoración. Así, encontrarás el diseño perfecto para todos tus proyectos de decoración —seas un profesional del interiorismo o, sencillamente, un aficionado del diseño—.
Paso a paso: Cómo hacer planos de habitaciones con Planner 5D
Diseñar habitaciones con Planner 5D es muy sencillo: primero dibuja las paredes de la habitación estableciendo las medidas que necesites. Añade puertas, ventanas y otros detalles arquitectónicos. Finalmente amuebla y decora el espacio eligiendo objetos de nuestro extenso catálogo, y arrastrándolos hasta su lugar ideal.
Una vez hayas acabado tu proyecto, podrás crear un render fotorrealista de la habitación. Comparte tus diseños en nuestra galería o expórtalos para mandarlos a quien quieras. Pasa de un plano de un cuarto 2D a un render 3D, en minutos.


De un plano de dormitorio 2D a render 3D en minutos.
Preguntas frecuentes
¿Cuánto mide un dormitorio estándar?
Normalmente, las medidas de un dormitorio estándar oscilan entre los 6 y los 12 metros cuadrados, dependiendo de si es dormitorio infantil, individual o doble.
¿Cuánto espacio se necesita para un dormitorio de matrimonio?
El tamaño mínimo de un dormitorio doble suele oscilar entre 10 o 12 metros cuadrados.
¿Dónde colocar la cama en un dormitorio con varias ventanas?
Por lo general, la cama no debe colocarse bajo una ventana, pero no siempre existe otra alternativa. Si has de colocar la cama en una pared con ventanas, evita bloquear las ventanas para maximizar la luz natural.
¿Cómo hacer diseños de cuartos modernos?
Para hacer planos modernos, trata siempre de maximizar la funcionalidad. Introduce soluciones de diseño inteligentes, muebles sencillos pero útiles, y superficies lisas y fáciles de limpiar.
También podría interesarte
- 22 arquitectos famosos de ayer y hoy que debes conocer
- Planos de casas modernas de uno y dos pisos
- Decoración de interiores para salas de estar
- Diseños de casas económicas
- Los setenta están de vuelta: la decoración años 70 se actualiza