Une maison rénovée de style vintage à Florence
Sols éclectiques, intérieurs lumineux et meubles vintage… Cette rénovation signée Studio Benaim va vous surprendre. Découvrons tous les détails de ce spectaculaire projet de design à Florence.
Au cœur de Florence — à deux pas de l’historique Porta Romana — les designers de Studio Benaim ont transformé cette maison des années 1930, pleine de lumière et de détails vintage.
Nous explorons ici chaque aspect du projet : du jeu saisissant des revêtements de sol à la magnifique cuisine, véritable cœur de la maison. Laissez-vous inspirer par ce design lumineux.
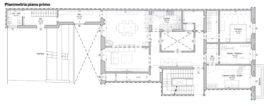
Un plan pour le moins curieux
Lors de la rénovation de maisons anciennes, la distribution des espaces est souvent l’un des plus grands défis. Ce logement — un appartement situé au premier étage d’une maison de 1930 — s’organise autour d’une cour centrale, avec un vaste jardin à l’arrière.

Dans son aménagement, Studio Benaim place les espaces privés vers l’avant de la maison (côté rue), tandis que le salon, la salle à manger et la cuisine sont réunis au fond, près du jardin. Pour apporter lumière et amplitude, les divisions entre les espaces sociaux disparaissent, grâce à de grands arcs et à une fenêtre intérieure reliant salle à manger et cuisine.



Appartement à Florence rénové par Studio Benaim. Images reproduites avec l'aimable autorisation de Mediatike et Ilve. Photographies : Sofia Lalli
« D’un côté, nous avons supprimé un mur qui séparait autrefois les pièces aujourd’hui occupées par le canapé et la table à manger, afin de créer un espace de vie large et unifié. De l’autre, nous avons ouvert un large passage entre la cuisine et le séjour, en y intégrant une profonde étagère en granit, servant également de support aux meubles inférieurs. »

Les finitions
Pour garantir un intérieur lumineux et spacieux, les murs ont été peints en blanc dans toute la maison (à l’exception notable d’une salle de bains, peinte en terre cuite).
Le blanc met en valeur les hauts plafonds de la maison et reflète l’abondante lumière provenant des fenêtres, créant une atmosphère propre et aérienne. Ce choix offre une toile neutre parfaite pour les petits détails décoratifs, qui ressortent ainsi davantage.


Appartement à Florence rénové par Studio Benaim. Images reproduites avec l'aimable autorisation de Mediatike et Ilve. Photographies : Sofia Lalli
Et parmi ces détails, les sols jouent un rôle central. Chaque pièce est revêtue de carreaux aux couleurs et motifs différents. Les azulejos d’origine se mêlent à de nouveaux sols en terrazzo — apportant un contraste frais — et à des dalles de marbre blanc qui délimitent chaque zone. Le résultat est un jeu subtil de couleurs et un caractère unique.

Dans les salles de bains, le style se fait plus contemporain. L’un des toilettes, blanc, est habillé de marbre dans toute la moitié inférieure. Dans l’autre salle de bains, une tonalité sable est privilégiée, remplaçant le carrelage par de la peinture pour créer un environnement plus chaleureux.


Appartement à Florence rénové par Studio Benaim. Images reproduites avec l'aimable autorisation de Mediatike et Ilve. Photographies : Sofia Lalli

La cuisine
La cliente — journaliste spécialisée dans le domaine culinaire — souhaitait une cuisine dont elle pourrait pleinement profiter. Les designers de Studio Benaim ont donc conçu une pièce qui, bien que petite, devient le véritable cœur de la maison.

L’espace est limité, mais optimisé avec intelligence. Les étagères ouvertes en partie haute aèrent la pièce, tout comme les meubles blancs, qui donnent à la cuisine une impression d’amplitude.Pour augmenter les rangements, les placards se prolongent jusqu’à la salle à manger, formant un long plan de travail sous la fenêtre reliant cuisine et salle à manger. Le granit gris moucheté choisi pour les surfaces offre un contraste marqué avec le sol en terrazzo beige.


Appartement à Florence rénové par Studio Benaim. Images reproduites avec l'aimable autorisation de Mediatike et Ilve. Photographies : Sofia Lalli
Mais la cuisine n’est pas seulement belle : elle est aussi très fonctionnelle. Le réfrigérateur en acier inoxydable apporte une touche moderne et s’accorde avec la spectaculaire cuisinière professionnelle Ilve — six brûleurs et deux fours.

Des meubles au style vintage
Dans cet appartement, minimalisme et esprit rétro coexistent harmonieusement. Les espaces blancs et ouverts sont complétés par des meubles vintage aux tons sombres. Les designers optent pour des cuirs grenat et vert pour les canapés, ainsi que pour une salle à manger meublée de pièces en bois rustiques et patinées. Les lampes et les œuvres d’art, quant à elles, relèvent du style contemporain.


Appartement à Florence rénové par Studio Benaim. Images reproduites avec l'aimable autorisation de Mediatike et Ilve. Photographies : Sofia Lalli
Le résultat est un intérieur frais, minimaliste et moderne, mais également chaleureux et habité. Ici, chaque photographie, chaque livre, chaque souvenir devient un véritable protagoniste.
Commencez à planifier votre maison dès aujourd'hui !
Essayez Planner 5D et transformez vos rêves de maison en plans 3D.